Королев
Сдам
Сниму
Продам
Куплю
         Площадь:
от:

до:
кв.м.
         Стоимость:
от:

до:
руб.
Показать

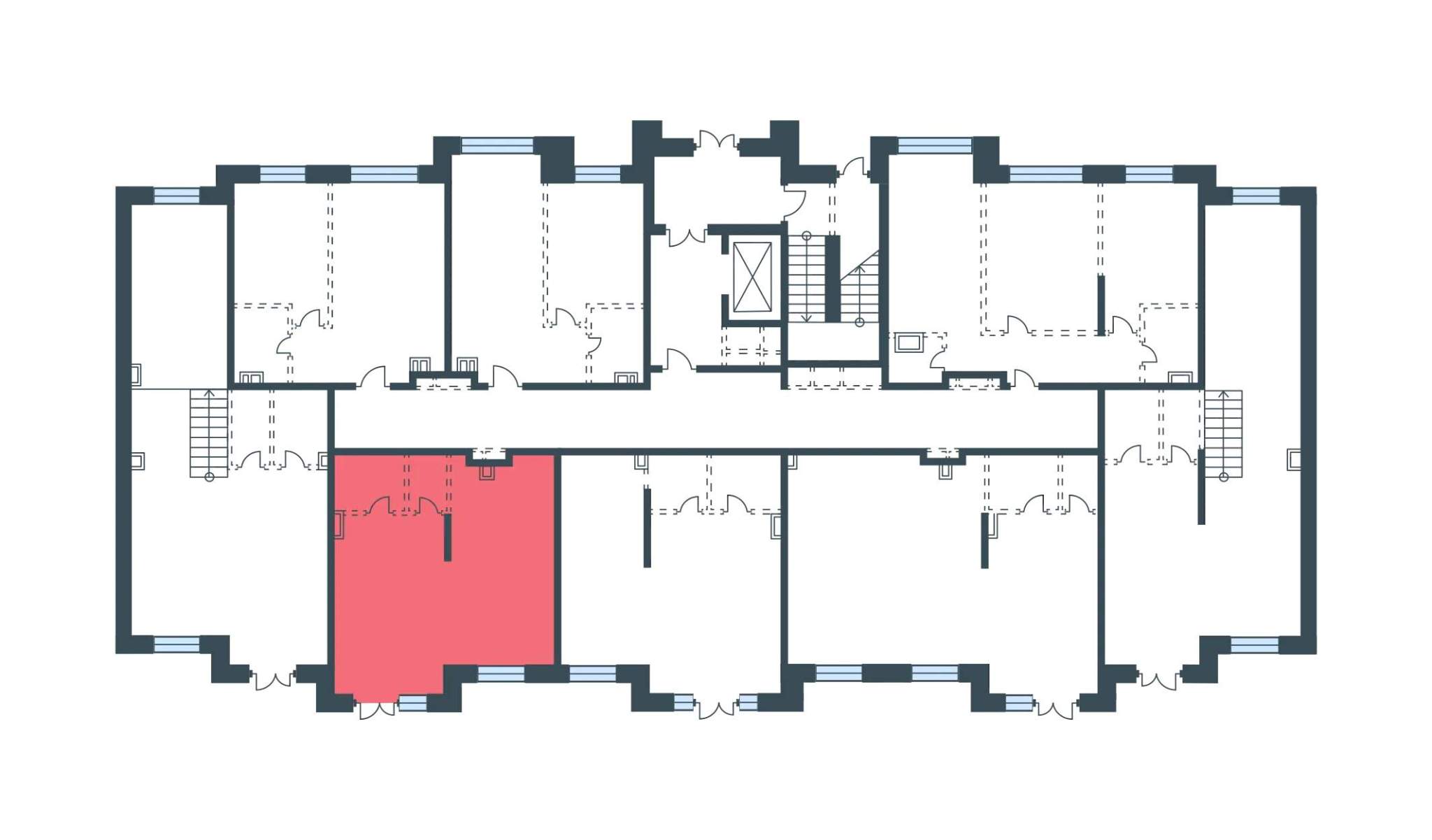
Аренда ПСН площадью 45.9 м2

Стоимость аренды 68850 руб./месяц
Сдаётся в аренду коммерческое помещение площадью 45,9 м на 1-м этаже 5-этажного жилого дома в ЖК «Театральный Парк».
Основные преимущества:
- отдельный вход;
- место под вывеску;
- круглосуточный доступ;
- помещение без ремонта, что позволяет обустроить его по своему вкусу и требованиям бизнеса;
- помещение находится в жилом комплексе комфорт-класса;
- развитый район с насыщенной инфраструктурой и активным пешеходным трафиком.
Технические характеристики: наличие всех необходимых коммуникаций: водоснабжение, канализация, электроснабжение. Выделенная мощность - 9,1 кВт. Высота потолков - 4,2 м.
Условия: помещение предоставляется без посредников, напрямую от собственника - компании «Аструм Недвижимость», которая управляет коммерческой инфраструктурой жилых комплексов ГК «Гранель».
ЖК «Театральный Парк» от ГК «Гранель» - это современный малоэтажный комплекс комфорт-класса, расположенный в экологически чистом районе подмосковного Королева, всего в 7 км от МКАД. Близость к Москве позволяет совмещать активную деятельность в столице с комфортной жизнью за городом. Комплекс возведен на площади 27 га, включает 42 кирпичных дома и всю необходимую для жизни инфраструктуру. Микрорайон уже практически полностью заселен более чем 4,5 тысячами жителей, большинство из которых - активные люди в возрасте 20-50 лет, что гарантирует высокий пешеходный трафик. На первых этажах жилых корпусов, как в данном предложении, расположены коммерческие помещения.
Наши менеджеры помогут вам подобрать наиболее подходящее помещение для вашего бизнеса. Звоните и узнайте подробности!

Общая стоимость: 68850 руб./месяц с НДС
Общая площадь: 46 кв. м
Этаж/этажность: 1/4


Отдел продаж т. (495) 0239502



Расскажи об этом объявлении:

 facebookFacebook    twitterTwitter    в контактеВ Контакте  
2172543
16 Октября 2025
просмотров 29



  • test
  • test
  • test
  • test
  • test
  • test
  • test
  • test
  • test

Добавить комментарий



Похожие объявления





Отправка сообщения хозяину объявления: №
Пожаловаться на объявление: №